+34 971 698 242
Lisez davantage au sujet de la vente... en savoir plus...
Lisez davantage au sujet de la location... en savoir plus...

This exceptional plot is located approximately five minutes outside Campos, in a peaceful yet easily accessible setting. Campos is an authentic and lively town in the south of Mallorca, offering excellent infrastructure throughout the year. Restaurants, cafés, shops, a weekly market, schools and medical services are all available. The popular natural beaches of Es Trenc and Sa Ràpita can be reached within a short drive.
The almost square plot measures 23,955 qm and is set within the typical Mallorcan countryside, offering beautiful panoramic views of Mount Sant Salvador, Randa and the Tramuntana mountain range. A traditional Mallorcan natural stone wall surrounds the property, ensuring privacy and adding authentic island charm. The town of Campos can be reached in just five minutes.
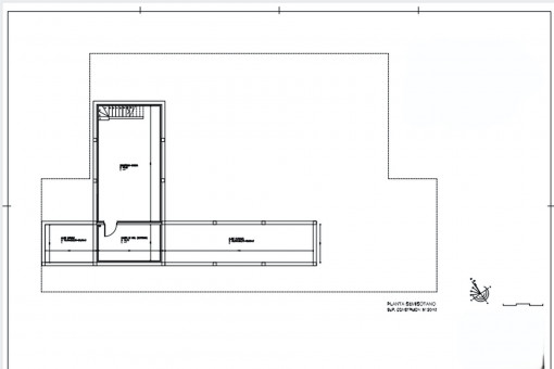
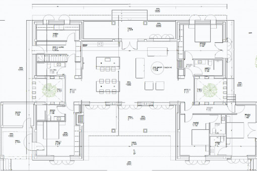
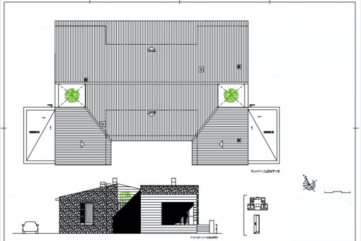
An approved finca project with a valid building license is in place, allowing construction to begin immediately. The planned architecture is generous and modern, featuring an open design in bungalow style.
The project includes approximately 408 sqm of living space and a built area of around 712 sqm. Spacious terrace areas of approximately 130 sqm complete the property. A true highlight is the exceptional swimming pool with around 105 sqm of water surface, measuring 4 metres in width and 25 metres in length — a genuine lap pool that is rarely achievable in this size today.
Project layout overview:
Open-plan living and dining area with kitchen of approximately 78 sqm
Four bedrooms, each with en-suite bathroom
Two interior patios providing light, tranquillity and privacy
Basement offering additional usage possibilities
All relevant documentation is available.
Please contact us for further information or any questions regarding this project.
The rural town of Campos in the South-east of the island is conveniently situated halfway between Llucmajor and Santanyí. Surrounded by an extensive agricultural area, the town offers many shops for daily needs, restaurants and sporting facilities. There are only a few defence towers left of the old medieval town. Today Campos is a lively community, which especially on market days attracts many visitors.
The famous, long sandy beach of Es Trenc with its dunes and turquoise blue sea belongs to the municipality of Campos and offers beach fun with Caribean flair.
The airport can be reached in 25 minutes, the island capital Palma is only 35 km away.
All information is correct to the best of our knowledge. Errors and prior sale excepted. This prospectus is purely for information purposes. Only the notarized deed of sale is legally binding.
Référence:
077991
Lieu:
Campos
Terrain:
23.955 m²
Dév. potentiel:
![]()
Dév. terrain:
712 m²
Permis de construction:
-
Vue sur la mer:
-
Prix de vente:
€ 600.000,-
Online- viewing:
Merci beaucoup pour votre demande!
Nous vous envoyons l’information nécessaire immédiatement
Campos: Wonderful plot with basic project and beautiful views in a quiet location near Campos
Campos: Rural building plot with construction permit and breathtaking views near Campos
Campos: Finca building-plot centrally-located between Santanyi and Campos
Campos: Wonderful building plot near Campos with construction project