+34 971 698 242
Lisez davantage au sujet de la vente... en savoir plus...
Lisez davantage au sujet de la location... en savoir plus...

This attractive corner plot is located in a sought-after suburb of Palma. The surrounding area boasts an excellent infrastructure and a quiet yet well-connected residential area. With an existing building license, the plot offers the ideal basis for realizing a modern dream home.
Planned residential property:
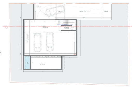
Basement
The basement offers ample space with a spacious garage for 2 vehicles (approx. 100 sqm). This area is complemented by a practical machine room, water tanks and a staircase that connects to the upper living levels.
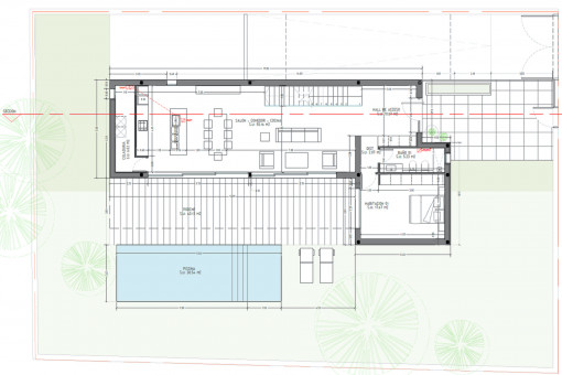
First floor
A spacious entrance area welcomes you on the first floor. The light-flooded living and dining area with adjoining kitchen opens up from here - the perfect central meeting point for family and guests. There is also a bedroom, a bathroom, a laundry room and a spacious terrace with access to the pool (approx. 30 sqm) on this level, which is perfect for relaxing.
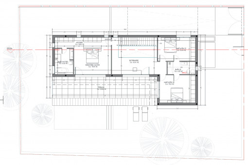
Upper floor
The upper floor houses the master bedroom with its own dressing area. Two further bedrooms and 2 elegant bathrooms provide ample space and comfort. A central distributor rounds off the level and provides a harmonious transition between the rooms.
Further highlights are the quiet yet central suburban location of Palma, attractive corner location, a spacious, modern room layout, an outdoor area with pool and sun terrace.
The existing building license should also be highlighted.
Las Maravillas is a quiet residential area, which is located at the famous beach Playa de Palma and is especially sought-after due to the proximity to the capital of Palma. The area is modern and very popular among residents.
All information is correct to the best of our knowledge. Errors and prior sale excepted. This prospectus is purely for information purposes. Only the notarized deed of sale is legally binding.
Référence:
122461
Lieu:
Playa de Palma
Terrain:
600 m²
Dév. potentiel:
![]()
Dév. terrain:
386 m²
Permis de construction:
![]()
Vue sur la mer:
-
Prix de vente:
€ 560.000,-
Online- viewing:
Merci beaucoup pour votre demande!
Nous vous envoyons l’information nécessaire immédiatement